Marco Caramelli Négociateur
Télécharger la fiche

Immeuble 96 m² 3 etage(s)

Leucate (11370)
278 000 € Référence Maca2294

A propos de ce bien

Alaric Immo vous propose, au cœur du pittoresque village de Leucate, un immeuble de caractère composé d’un local commercial de 26 m² en rez-de-chaussée et d’un appartement en triplex de 70 m², avec mezzanine.

Local commercial (26 m²)

Situé au rez-de-chaussée, il bénéficie d’un emplacement idéal au cœur du village.
Polyvalent, il peut accueillir diverses activités : restauration, commerce de bouche, boutique de décoration, habillement, etc.

Actuellement loué 720 € / mois.

Appartement en triplex (70 m² dont mezzanine)

Avec une entrée indépendante, l’appartement se développe sur trois niveaux :

  • 1er étage :
    Deux chambres parquetées :

    • Une de 9 m² avec grands rangements intégrés

    • Une de 13 m², de style bourgeois, avec cheminée décorative et double fenêtre

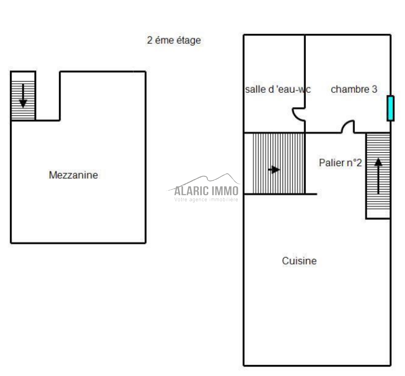
  • 2e étage (carrelé en terre cuite rouge) :

    • Une cuisine / salle à manger de 13 m²

    • Une troisième chambre avec salle d’eau attenante

  • Mezzanine (12 m²) :
    Lumineuse grâce à une fenêtre de toit, elle peut faire office de
    quatrième chambre, bureau, salon ou coin TV.

Actuellement loué 550 € / mois (potentiel estimé : 700–750 € après rafraîchissement).

Atouts du bien :

  • Emplacement privilégié au cœur de Leucate Village, à proximité immédiate des commodités

  • Appartement avec beaucoup de cachet : parquet ancien, carrelage en terre cuite, cheminée

  • Bon état général, quelques travaux de rafraîchissement permettront de mettre pleinement en valeur son charme

  • Bonne isolation naturelle grâce aux murs épais et à l’orientation nord-ouest

  • Menuiseries en double vitrage

Un cadre de vie recherché :

Situé entre mer, étangs et garrigue, Leucate Village offre un environnement naturel exceptionnel, à seulement 5 minutes de l’autoroute A9, et 25 minutes de Narbonne et de Perpignan.


Un bien rare aux multiples possibilités :

Ce bien constitue une opportunité idéale pour :

  • Un investissement locatif

  • Un projet mêlant vie professionnelle et personnelle

  • Une résidence principale ou secondaire de charme

Dans un secteur prisé où les biens se font rares, cet immeuble représente un investissement sûr et pérenne.

Pour toute information, contacter:

Marco Caramelli - 06 64 33 28 09 MarcoCaramelliPro@gmail.com













ALARIC IMMO est une entreprise spécialisée dans le secteur
immobilier, fondée en 1998 par une équipe de professionnels animés
par la volonté d'offrir un service de qualité à ses clients.
Reliant terre et mer, nos bureaux se situent dans les Corbières à
Fabrezan, et en bord de mer à Leucate Village.

Nous sommes fiers de notre ancrage local dans le sud de la France, et
de notre connaissance approfondie du marché immobilier régional.

Notre mission est de vous accompagner tout au long de votre projet,
que vous souhaitiez acheter, vendre, louer ou investir.
Grâce à notre expertise et à notre réseau de partenaires
(notaires, courtiers, conciergeries, entreprises de rénovation...),
nous vous offrons un service personnalisé et adapté à vos besoins,
afin que vous puissiez concrétiser vos projets immobiliers en toute
sérénité.

Caractéristiques de ce bien

  • Surface 96 m²
  • carrez 96 m²
  • construit en 1850
  • Chauffage individuel : radiateur (electrique)
  • exposition Nord-Ouest
  • 4 niveau(x)
  • 3 étage(s)
  • vue centre village

Diagnostics énergétiques

Consommation énergétique
A B C D E F G
Emission de gaz à effet de serre
A B C D E F G
DPE en cours

Informations financières

Prix de vente 278 000 € Les honoraires d'agence seront intégralement à la charge du vendeur

Autour du bien

  • Commerces et santé
  • Loisirs
  • Ecoles
  • Transports
  • Pratique

Calcul des mensualités

* Champs obligatoires