Marco Caramelli Négociateur
Télécharger la fiche

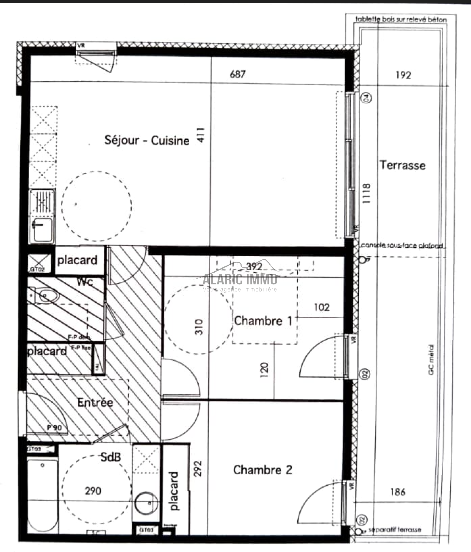
Appartement 3 pièce(s) 2 chambre(s) 68.6 m²

Le Barcarès (66420)
289 000 € Référence Maca2425

A propos de ce bien

Alaric Immo vous propose à la vente un appartement T3 niché au troisième étage d’une résidence contemporaine haut de gamme située à 100 mètres de la plage.

D'une superficie de 68,6 m² habitables, il se compose d'un séjour/cuisine lumineux de 29 m², de deux chambres (11,4 et 12,2 m²) et d'une salle de bains (5,3 m²). La terrasse de 21,5 m² offre une vue mer sur la droite et une vue dégagée sur le Canigou sur la gauche.

Chauffage par pompe à chaleur avec système gainable en faux plafond, régulation pièce par pièce.

Résidence sécurisée avec interphone, ascenseur, piscine collective, parking, local à vélos et accès PMR.

Toutes commodités à proximité immédiate : supermarché, pharmacie, restaurants, centre médical.

Taxe foncière: 1800 €

Charges de co-propriété : 178€ / mois


Pour toute information, veuillez contacter

Marco Caramelli

MarcoCaramelliPro@gmail.com

06 64 33 28 09

Caractéristiques de ce bien

  • Surface 68,60 m²
  • carrez 68,60 m²
  • séjour 29 m²
  • 2 chambre(s)
  • construit en 2015
  • cuisine américaine (semi-équipée)
  • Chauffage individuel : air pulsé (climatisation)
  • exposition Nord-Ouest
  • 1 niveau(x)
  • 3ème étage
  • 4 étage(s)
  • ascenseur
  • vue Mer/Canigou
  • terrasse
  • accès handicapé

Diagnostics énergétiques

Consommation énergétique
A B C D E F G
Emission de gaz à effet de serre
A B C D E F G
DPE ANCIENNE VERSION

Informations financières

Prix de vente honoraires TTC inclus 289 000 €
Prix de vente honoraires TTC exclus 276 000 €
Honoraires TTC à la charge acquéreur 4,71 %

Informations de copropriété

Copropriété Oui
Nombre de lots 92

Autour du bien

  • Commerces et santé
  • Loisirs
  • Ecoles
  • Transports
  • Pratique

Calcul des mensualités

* Champs obligatoires